Listed by Katelyn VanderWoude of RE/MAX Elite Realty
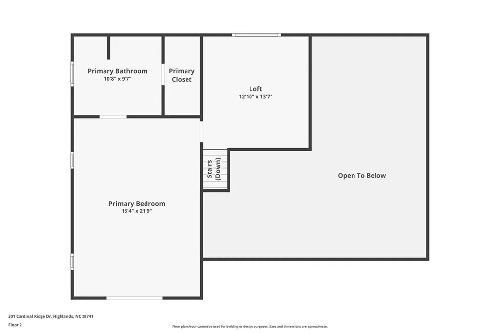
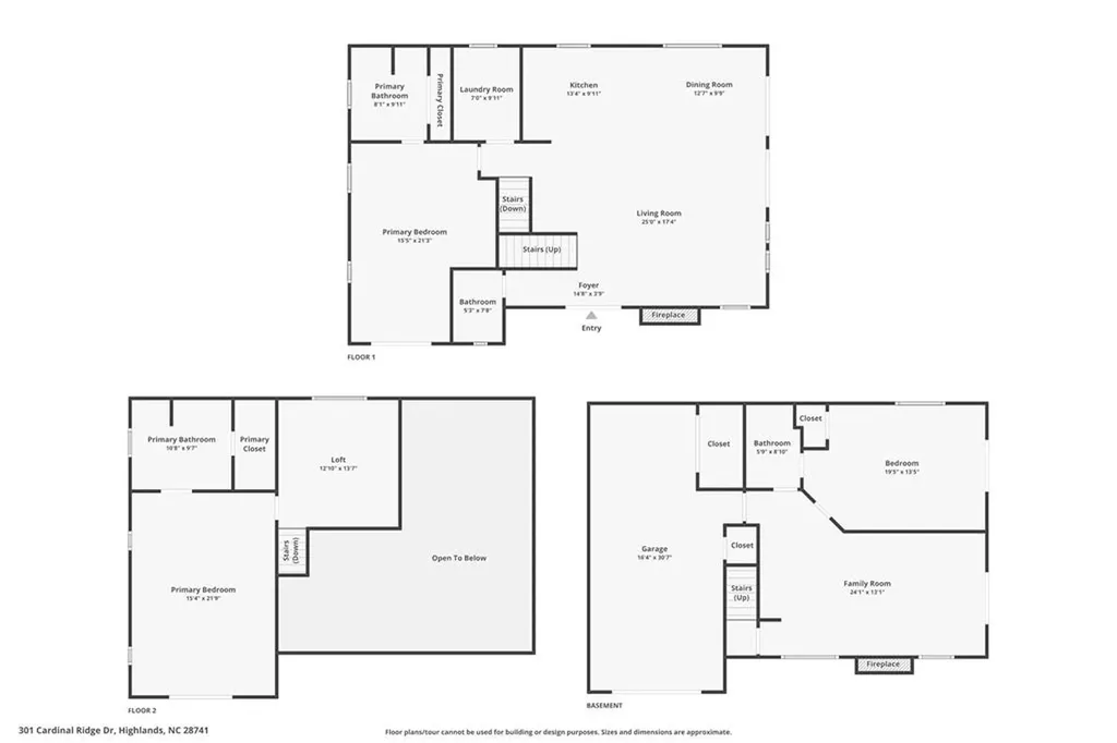
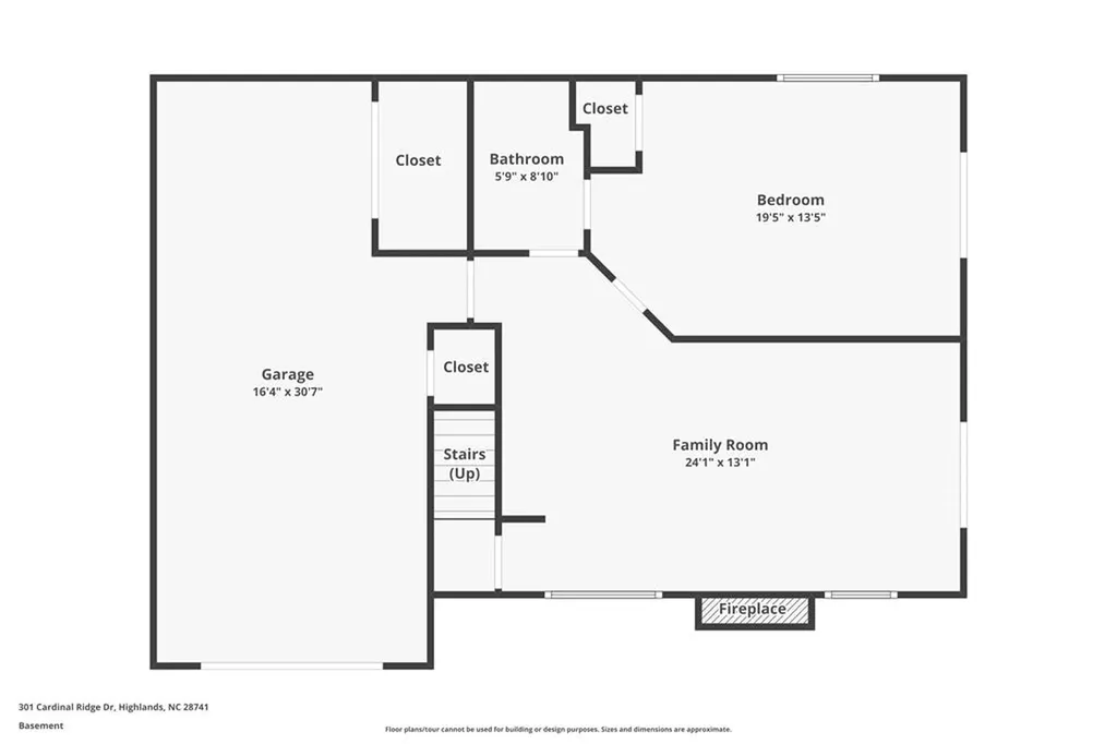
OWNER OCCUPIED- NO DRIVE BYS! Immaculate 3.28-acre mountain retreat in desirable Highlands Gate Estates-just 20 minutes to Highlands & 15 to Franklin! This private, newly renovated home offers the perfect mix of craftsmanship & convenience within a gated community. Move-in ready! Notable 2024 updates include a brand-new HVAC system, whole-house dehumidifier, new roof, & fully renovated bathrooms, offering peace of mind & modern comfort! The home offers main-level living with vaulted ceilings, an open-concept layout, & abundant natural light! The great room features a striking stone gas-log fireplace, while the kitchen is equipped with stainless steel appliances, custom cabinetry, & quality finishes. The main-level primary suite includes a sitting area, deck access, dual vanities, & a custom tiled walk-in shower, + a laundry room & half bath nearby. Upstairs, a spacious loft leads to a second primary suite with vaulted ceilings, a walk-in closet, private balcony, & en-suite bath. The lower level includes a versatile living area with a second gas-log fireplace, third bedroom, & full bath! Enjoy the convenience of an attached garage, level yard space, & paved access to both levels!

Listing Tools

Property Details of 301 Cardinal Ridge Drive

Property Details

Interior Features

Utilities and Appliances

Community

Other Details

Map Location

 "Based on information submitted to HCBOR as of November 12, 2025 11:43 PM EST. All data is deemed reliable but is not guaranteed accurate by the MLS. All information should be independently reviewed and verified for accuracy. IDX information is provided exclusively for consumers’ personal, noncommercial use and may not be used for any purpose other than to identify prospective properties consumers may be interested in purchasing."

Hi there! How can we help you?

Contact us using the form below or give us a call.

Send Us A Message:

I agree to receive marketing and customer service calls and text messages from Mountain Lux Collective. To opt out, you can reply 'stop' at any time or click the unsubscribe link in the emails. Consent is not a condition of purchase. Msg/data rates may apply. Msg frequency varies. Privacy Policy.

Do not fill in this field:

This site is protected by reCAPTCHA and the Google Privacy Policy and Terms of Service apply.